Södra Vägen fyrtiotre
Charmig 20-talsvåning i fint skick om 3 rok, 104 kvm på vån 3 i skuldfri förening! Mån.avg 1733 kr!
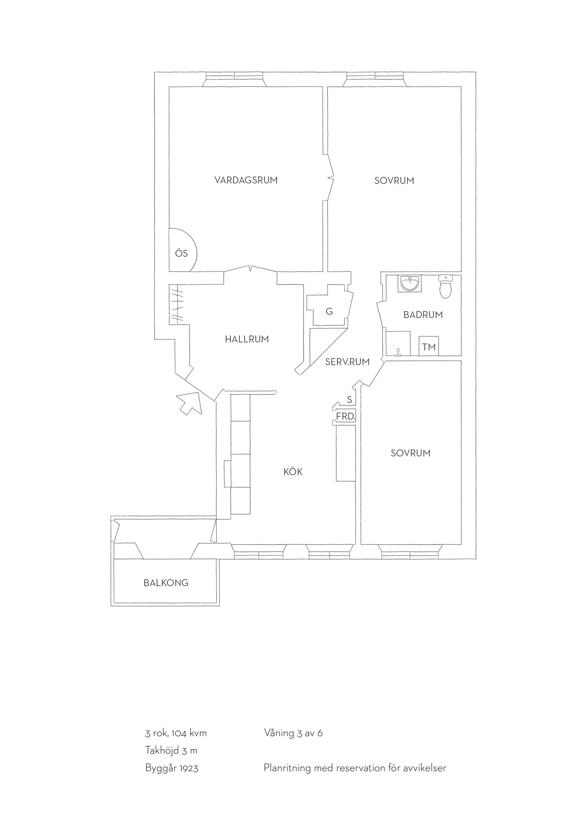
- Antal rum 3 rok, varav 1-2 sovrum
- Boarea 104 kvm
- Pris 9 500 000 kr
- Månadsavgift 1 733 kr
- Våningsplan 3 av 6
- Hiss Ja
- Planritning
- Visning 16 dec
- Karta
Det mäktiga hörnhuset nedanför Stadsteatern har en medveten elegans. I denna välskötta byggnad på våning 3 erbjuds en charmig 20-talsvåning i fint skick om 3 rok, 104 kvm med vackra ekparketter, öppen spis, badrum med tvättmaskin, stort kök samt delad köksbalkong. Skuldfri förening! Mån.avg 1733 kr!
Övrig information:
- Tillträde enligt överenskommelse
- Pantsatt lägenheten är pantsatt
Omgivning:
-
Allmänt om området
Stenstadskvarter från förra sekelskiftet invid Vasastaden
År 1866 togs en ny stadsplan fram med Vasastaden och Lorensberg som centrala områden. Den nya stenstaden tog form under 1800-talets slut och runt sekelskiftet 1900. Tongivande delar var Vasaplatsen, Vasagatan, Vasaparken och naturligtvis Kungsportsavenyn som färdigställdes med Götaplatsen 1935.
Lorensberg hänger tätt samman med Vasastaden och sträcker sig från vallgraven i norr, österut till Heden, mot Nedre Johanneberg i söder samt längs Aschebergsgatan och Vasaplatsen i väster.
Lorensbergs landeri
Innan byggandet av Lorensberg påbörjades upptogs markerna söder om vallgraven mestadels av stora landerier och herrgårdsliknande gårdsanläggningar. Under 1700-talet låg Lorensbergs landeri i nuvarande Lorensbergsparken och på samma plats etablerades ett värdshus 1823 som med tiden utvidgades och under 1900-talets början blev ett populärt nöjesetablissemang med restaurang, cirkus och Lorensbergsteatern.
Byggandet av Lorensberg påbörjades under 1870-talet och startade i den norra delen av området. Här uppfördes stora stenhus i slutna och regelbundna kvarter längs raka gator, ett bostadsområde av ”hög kvalité” för stadens bättre bemedlade. Mot slutet av 1800-talet byggdes bostadshus i fyra-fem våningar med ljust putsade fasader i rikt dekorerad nyrenässans.
Paradgatan framför andra
Längs Kungsportsavenyn och dess tvärgator finns i dag ett rikt utbud av restauranger, barer och butiker och Lorensberg utgör en viktig del av stadens centrum, såväl nöjesmässigt som kulturellt.
Under 1880-talet utvecklades Kungsportsavenyn till att bli en förnäm bostadsgata med stora våningar bakom ståtliga, ljusa putsfasader. Den utformades som en paradgata med trädrader kantad av förträdgårdar framför husen. Avenyn var ett viktigt huvudstråk och tidigt diskuterades hur den skulle avslutas i den södra änden.
Götaplatsen utformades efter en stadsplan från 1910 som omfattade Avenyns avslutning, Götaplatsen, samt Lorensbergs villaområde och som togs fram av dåvarande stadsingenjören Albert Lilienberg. Runt Götaplatsen byggdes några av de viktigaste offentliga byggnaderna i Göteborg. Det pampiga Konstmuseet stod klart 1923, lagom till öppnandet av Jubileumsutställningen samma år. Stadsteatern och Konserthuset invigdes 1934 respektive 1935 och utformades i funktionalistisk stil. Den numer klassiska statyn över Poseidon hade då rests som kronan på verket fyra år tidigare, 1931.
Livet i Lorensberg
Bostadslägenheterna i Lorensberg planerades efter de principer som gällde för borgerliga hem i städerna under slutet av 1800-talet. Åt gatan låg den representativa delen av bostaden med salong, matsal och herrum i fil medan den privata delen med sovrum och kök var vända åt gården. På gården låg avträden och enklare gårdshus som innehöll smålägenheter med ett eller två rum. Alla bostäder värmdes ursprungligen med kakelugn eller liknande och i gathusen fanns både avloppssystem och rinnande vatten, ibland till och med även badrum för personlig hygien. Fram på 1930-talet installerades WC i både gat- och gårdshus och centralvärmen kom inte långt efter. I husens källarvåningar fanns verksamheter som skomakeri, mjölkaffär och potatislager.
Lorensbergs stenhusbebyggelse från tiden före 1935 är välbevarad och kompletterad med några större, modernare skapelser - främst längs Avenyn, men 1866 års stadsplan gör sig fortfarande i högsta grad påmind.
Föreningen:
- Namn Berzelius
-
Om föreningen
Byggnaden uppfördes 1923 på adresserna Södra Vägen 41 & 43. Brf Berzelius förvärvade fastigheterna Lorensberg 25:1 & Lorensberg 25:2 år 1923 och då som Bostadsaktiebolag. 2004 ombildades aktiebolaget till bostadsrättsförening. Fastigheten är friköpt.
Byggnaderna inrymmer 35 lägenheter om 3621 kvadrat samt 6 lokaler upplåtna med hyresrätt om 382 kvadrat.
Brf Berzelius, 769611-8343, registrerades 2004-12-17. Föreningens nuvarande ekonomiska plan registrerades 2005-05-07 och nuvarande stadgar 2004-12-22.
Föreningens långsiktiga låneskuld är 0 kr, vilket ger en belåning på 0 kr/kvm. Fastigheternas taxeringsvärde 2023 är 132 552 000 kr. Månadsavgiften är 200 kr/kvm och år. Lokalhyresintäkterna utgör 55 % av totala omsättningen.
Ekonomisk förvaltning utförs av SBC.
Trappstädning utförs av extern entreprenör.
Cykelparkering finns på gården. - Antal lägenheter 35
- Antal lokaler 6
- Överlåtelseavgift 1 313 kr
- Pantsättningsavgift 545 kr betalas av köparen
- Tillåter juridisk person Nej
Ansvarig mäklare
- Tomas Ahre
- 0705 250650
- [email protected]
Lägenheten:
- Upplåtelseform Bostadsrätt
- Lägenhetsnummer 28
Byggnaden:
- Byggnadsår 1923
Visningar:
-
Varmt välkommen att anmäla dig här eller ring mäklaren.Boka visning
Är du intresserad av detta hem?